Комплектация «Стандарт» 3 900 000 ₽
1. Проект дома:
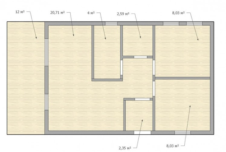
- План экспликации
- Раскладка фасада дома
- Рабочая документация для постройки дома
2. Фундамент и подготовительные работы:
- Первичный анализ грунта
- Подготовка строительной площадки
- Геодезическая разметка участка и расположения дома
- Свайный железобетонный фундамент
3. Каркас дома, мембраны, утепление:
- Каркас дома из строганной доски камерной сушки
- Гидро-ветрозащитная паропроницаемая мембрана с проклейкой стыков на стенах
- Пароизоляционная мембрана 150-200 мкрн с проклейкой стыков
- Утепление 200мм пола, стен и потолка
- Крыльцо у входной двери на свайном фундаменте
4. Кровля, фасад, окна, дверь:
- Кровельный материал: профлист матовый графит
- Внешняя отделка: профлист матовый графит и имитация бруса с покраской
- Окна: 5-ти камерный профиль и 2-ух камерный стеклопакет с наружной отделкой металлом
- Металлическая входная дверь с терморазрывом
5. Инженерные коммуникации
- Электрические радиаторы
- Сборка электрощита, монтаж вводного кабеля в дом
- Септик 8,88 куб.м (ж/б, двухсекционный с переливом)
- Разводка канализационных труб по дому и разводка водопровода в котельной
6. Особенности конструктива
- Потолок скошенный 2.3-3.3 м.
Комплектация «Стандарт плюс» 5 330 000 ₽
1. Проект дома:
- План экспликации
- Раскладка фасада дома
- Рабочая документация для постройки дома
2. Фундамент и подготовительные работы:
- Первичный анализ грунта
- Подготовка строительной площадки
- Геодезическая разметка участка и расположения дома
- Свайный железобетонный фундамент
3. Каркас дома, мембраны, утепление:
- Каркас дома из строганной доски камерной сушки
- Гидро-ветрозащитная паропроницаемая мембрана с проклейкой стыков на стенах
- Пароизоляционная мембрана 150-200 мкрн с проклейкой стыков
- Утепление 200мм пола, стен и потолка
- Шумоизоляция 100мм в перегородки
- Крыльцо у входной двери на свайном железобетонном фундаменте
4. Кровля, фасад, окна, дверь:
- Кровельный материал: профлист матовый графит
- Внешняя отделка: профлист матовый графит и имитация бруса с покраской
- Окна: 5-ти камерный профиль и 2-ух камерный стеклопакет с наружной отделкой металлом
- Металлическая входная дверь с терморазрывом
5. Инженерные коммуникации
- Электрическая миникотельная станция
- Водяной теплый пол с коллектором
- Полусухая стяжка с армированием поверх плит ЭППС
- Разводка черновой электрики, сборка электрощита, монтаж вводного кабеля в дом
- Вытяжная вентиляция
- Септик 8,88 куб.м (ж/б, двухсекционный с переливом)
- Разводка сантехнических труб по дому (Водопровод и канализация с греющим кабелем)
6. Внутренняя отделка
- Отделка стен и потолка гипсокартонными листами
- Монтаж закладных под подвесную мебель
- Потолок скошенный 2.3-3.3 м.