АКЦИЯ ! Предложение ограничено! №652

Цена строительства от 3 980 000 ₽* * Стоимость не является окончательной
Заявка на консультацию
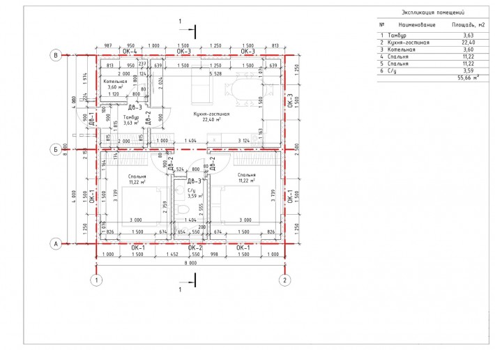
  • Общая площадь 55 м2
  • Длина 8 м
  • Ширина 8 м
  • Материал стен Каркас
  • Количество этажей 1
  • Подвал Нет
  • Мансарда без мансарды
  • Гараж Нет
  • Терраса Нет
  • Проживание Круглогодичное
  • Количество комнат 3
  • Количество спален 2
  • Количество санузлов 1
  • Вид проекта дом
  • Застройщик МоноЛит
  • Отделка фасада Обшивка деревом
  • Крыша Двускатная
  • Можно купить домокомплект Нет
  • Модульный тип строения Нет
Планировки
Описание проекта

Комплектация

  • Фундамент винтовые сваи
  • Теплый контур
  • Окна кашир.
  • Дверь термо.
  • Кровля металочерепица
  • Фасад профлист как на фото, сторона фасада где фронтоны под дерево как на фото
  • Подшив карниза
  • Внутри стены гипс вайт бокс окрашены( можно заколеровать в разный цвет и покрасить в любой)
  • Электрика
  • Септик два кольца жб с заведением трубы в дом
  • Разведение канализации, водоотведения по дому
  • Разводка воды по дому
  • Электрика скрытая под ключ, две розетки один выключатель на комнату( можно увеличить)
  • Отопление радиаторы, электро котел ( можно газовый котел)
  • На полу линолеум
  • Натяжной потолок
  • Санузел на полу плитка, на стенах панели (имитация плитки)

Практически под ключ, не хватает только межкомнатных дверей

Вас может заинтересовать
Вас может заинтересовать

Выбор местоположения

Задать вопрос / написать нам

E-mail: domgis@mail.ru

Мы свяжемся с Вами в течение дня.

Тех. поддержка
Предмет обращения:
Тукущая страница

Мы свяжемся с Вами в течение дня.

Обратный звонок
Обратный звонок
Выберите ваш город
Пожаловаться

Объявление опубликовано.
Изменения сохранены

Период публикации - бессрочный, при условии подтверждения актуальности каждые 50 дней. Уведомления будут отправляться на Вашу электронную почту.

Выберите причину снятия с публикации

Снятые с публикации объявления не участвуют в поиске и недоступны для подробного просмотра.

Для повторной публикации нажмите «Вернуть в публикацию»