Дом "Сорено" воплощает современный подход к загородной жизни, сочетая функциональность, простор и уют. Архитектура вдохновлена натуральными материалами и лаконичными формами, с акцентом на высокие потолки под коньком двускатной крыши, создающие ощущение свободы и простора. Большие панорамные окна наполняют интерьеры естественным светом, а деревянные балки и каменные акценты добавляют тепла и текстуры.
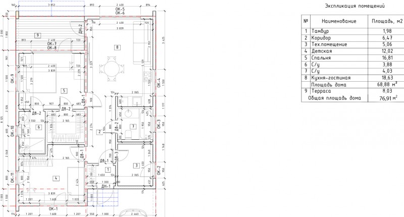
Планировочные особенности:
1. Хозяйская спальня с приватной зоной
2. Вторая спальня
3. Сердце дома — кухня-гостиная
4. Дополнительные помещения
5. Архитектурные детали
Дом "Сорено" идеален для тех, кто ценит приватность, единение с природой и современный дизайн. Каждая деталь продумана для жизни с комфортом, а терраса, гардеробная и два санузла делают его универсальным как для семьи, так и для приёма гостей.
Стоимость домокомплекта 2 560 000 рублей
Выбор местоположения
Мы свяжемся с Вами в течение дня.